Ascent Series / 14481D

Home » Floor Plans » Ascent Series / 14481D

Floor Plan Details

Manufactured

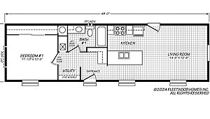
BEDS: 1     BATHS: 1.00     SQ FT: 656     W X L: 14′ 0″ x 48′ 0″

BUILT BY: Cavco Woodburn

The 14481D built by Cavco Woodburn from the Ascent Series is a compact and efficient 1-bedroom, 1-bathroom home offering 656 sq. ft. of smart living. Ideal for singles or couples, this model features a cozy living space, functional kitchen, and comfortable bedrooms. The 14481D is a perfect balance of simplicity and comfort, designed to make the most of every square foot while providing a warm and inviting atmosphere.
Share this home on Facebook

Tours & Videos

No Videos Available

3D Tour

No 3d Tour Available

Floor Plan

Floor Plan Specifications

Floor Decking: 4’ x 8’ x 19/32” tongue and groove OSB
Floor Joists: 2 x 6 16” O.C
Roof Load: 30 Pound w/Trusses 24" OC
Side Wall Height: 2 X 6 at 16" OC / Low Sidewall is 96", high sidewall is 124"
Insulation (Floors): R-33
Insulation (Walls): R-21
Insulation (Ceiling): R-40
Eaves: End walls and high sidewall 12" . Low sidewall 6". Perforated soffit.
Package: Energy Star Standard
Dormer: No Dormer
Front Door: Model Specific-36" exterior doors with deadbolt and ppephole. Some models have SGD. See print.
Roof Pitch: 2.25/12. Shed roof
Shingles: Architectural with Limited Lifetime warranty.
Siding: LP SmartSide Panel- High sidewall has a horizontal trim piece 8' up. Above the trim piece can be painted an accent color.
Window Trim: 4" Trim All Sides
Window Type: Low-E vinyl windows with argon gas
Exterior Lighting: Upgrade Square Glass Fixtures. If model has a standard or optional porch can lights in porch ceiling replace wall mounted light.
Ceiling Fans: Wire & Brace For Ceiling Fan(s) Optional
Window Treatment: White finished sills (not T/T) w/lip molding
Molding: 3-1/4” in lino areas. Optional all other areas
Wall Finish: Standard w/square corners throughout.
Interior Doors: White raised 2 panel / 2 ¼” Waterfall door trim with Round brushed nickel door handles / White raised 2 panel Wardrobe Doors
Interior Lighting: Recessed LED can light
Interior Flooring: Lino throughout except bedrooms. Bedrooms Level 1 carpet and 3/8" rebond pad.
Cabinetry & Counters: Knotty Alder raised panel doors. Knotty Alder face frame and side panels with hidden hinges. All cabinets all have light maple color lined interiors.
Additional Specs: 1/2" High Density (ceiling); 1/2" Standard (walls) / Wire shelves location per print.
Interior Paint: Creamy throughout standard.
Carpet Type Or Grade: Level 1 carpet & 3/8" rebond carpet pad in bedrooms.
Electrical Service: 200 AMP
Other: TV/Phone Boxes - Rough In With Raceways - Not Wired - Optional
Bathroom Lighting: Cosmetic LED lights over lavy. Some baths may have a can light in addition to the cos light
Kitchen Lighting: Recessed LED can light

Photo Gallery

Please note:

All sizes and dimensions are nominal or based on approximate manufacturer measurements. 3D Tours and photos may include retailer and/or factory installed options. Future Homes of Bremerton reserves the right to make changes due to any changes in material, color, specifications, and features at any time without notice or obligation.