Eagle / EG28443S

Home » Floor Plans » Eagle / EG28443S

Floor Plan Details

Manufactured

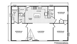
BEDS: 3     BATHS: 2.00     SQ FT: 1173     W X L: 26′ 8″ x 44′ 0″

BUILT BY: Cavco Woodburn

Eagle EG28443S – Affordable smaller family home designed to maximize living space absent wasted hallways, features master bedroom and in-suite bath privately located away from king size guest bedrooms and second bath at opposite end of floorplan. Approved for MH Advantage financing.
Share this home on Facebook

Tours & Videos

No Videos Available

3D Tour

No 3d Tour Available

Floor Plan

Floor Plan Specifications

Floor Decking: 4'x8' x19/32" tongue and groove OSB
Floor Joists: 2x6 16" O.C.
Roof Load: 20 Lbs
Roof Truss: 24" O.C.
Side Wall Height: 96" Flat Ceiling
Insulation (Floors): R11
Insulation (Walls): R11
Insulation (Ceiling): R21
Dormer: Standard
Front Door: 36" Inswing with deadbolt knocker and peephole
Rear Door: 32" Inswing with deadbolt
Roof Pitch: 3/12
Shingles: Architectural with Limited Lifetime Warranty
Siding: LP Smartside Panels
Window Trim: Faux Shutter Painted FDS 4" trim all others
Window Type: Low-E Vinyl Windows with Argon Gas
Exterior Lighting: At Front and Back Doors
Electrical Service: 200 AMP
Water Heater: 30-Gallon Electric Standard / 50-Gallon optional
Bathroom Sink: Acrylic
Bathroom Lighting: Recessed can lights - optional Cosmetic light
Bathroom Flooring: Lino
Bathroom Backsplash: 4" Laminate
Bathroom Bathtubs: 60" Acrylic tub with 3 piece Surround and shower head
Kitchen Sink: 8" Deep Stainless Steel
Kitchen Refrigerator: 18 CF Frost Free
Kitchen Range Type: 30" Electric with window and clock
Kitchen Range Hood: 30" Black
Kitchen Lighting: Recessed LED can lights
Kitchen Flooring: Lino
Kitchen Faucets: Dual Handle Chrome
Kitchen Countertops: Laminate
Kitchen Backsplash: 4" Laminate
Interior Doors: 2 or 6 White Raised Panel
Interior Lighting: LED can light

Photo Gallery

Please note:

All sizes and dimensions are nominal or based on approximate manufacturer measurements. 3D Tours and photos may include retailer and/or factory installed options. Future Homes of Bremerton reserves the right to make changes due to any changes in material, color, specifications, and features at any time without notice or obligation.